Bếp công nghiệp
- 13.0%
- Vậy chúng ta hãy cùng tìm hiểu bếp công nghiệp là gì?
- Các Đặc điểm của bếp công nghiệp là?
- Ý nghĩa của việc đầu tư hệ thống bếp công nghiệp cho nhà hàng, khách sạn, trường học, bệnh viện.
- QUY TRÌNH BẾP MỘT CHIỀU:
- KHU SƠ CHẾ
- KHU NẤU – KHU BẾP NÓNG:
- KHU BẾP LẠNH – SALAD:
- KHU BẾP BÁNH:
- KHU BẾP TIỆC:
- KHU SOẠN CHIA:
- KHU RỬA CHÉN:
- Tạo sao chọn Thành Vinh để tư vấn thi công hệ thống bếp công nghiệp?
- ƯU ĐIỂM CỦA THIẾT BỊ BẾP CÔNG NGHIỆP – NHÀ HÀNG THÀNH VINH
- 1/ ĐỘI NGŨ CHUYÊN MÔN KỸ THUẬT CÓ KINH NGHIỆM & ĐƯỢC ĐÀO TẠO BÀI BẢN.
- 2/ SẢN PHẨM CHẤT LƯỢNG – PHÙ HỢP VỚI KHÁCH HÀNG.
- 3/ THIẾT KẾ TƯ VẤN HỆ THỐNG BẾP CÔNG NGHIỆP – NHÀ HÀNG ĐẠT CHUẨN – TỐI ƯU – HIỆU QUẢ
- 4/ GIẢI PHÁP TỔNG THỂ – TIẾT KIỆM THỜI GIAN – CHI PHÍ:
- CÔNG TY TNHH SẢN XUẤT TM DV THÀNH VINH
- Văn phòng: B168e đường Nguyễn Chí Thanh, KP. Bình Phước, P. Bình Nhâm, TP. Thuận An, Bình Dương
- Xưởng: B168e đường Nguyễn Chí Thanh, KP. Bình Phước, P. Bình Nhâm, TP. Thuận An, Bình Dương
- Thành Vinh – Uy tín – Chất lượng trong từng sản phẩm!
- • Hotline: 0947 838 939 (Dự án) – 0936 37 77 27 (Kĩ thuật) • Email: thanhvinh.thien@gmail.com – congtythanhvinh.tv@gmail.com • Website: www.bepinoxcongnghiepthanhvinh.com
Bếp công nghiệp đang ngày càng được các chủ nhà hàng khách sạn và cơ sở kinh doanh dịch vụ ăn uống quan tâm và đầu tư đúng mức, việc đầu tư một hệ thống bếp công nghiệp hiệu quả giúp gia tăng lợi nhuận và tiết kiệm chi phí đáng kể cho chủ đầu tư.
Bài viết này sẽ giúp bạn hiểu hơn về bếp công nghiệp và cách thức để đầu tư một hệ thống bếp công nghiệp hiệu quả, tiết kiệm.
Vậy chúng ta hãy cùng tìm hiểu bếp công nghiệp là gì?
Bếp công nghiệp, bếp nhà hàng là hệ thống bếp chuyên nghiệp trong các nhà hàng, khách sạn, trường học, bệnh viện, và suất ăn công nghiệp.
Các Đặc điểm của bếp công nghiệp là?
Bếp công nghiệp được sử dụng để nấu cho số lượng lớn người ăn trong thời gian ngắn và thực đơn đa dạng, vì vậy bếp công nghiệp có những đặc điểm như sau:
- Bếp công nghiệp sẽ sử dụng các thiết bị bếp chuyên dụng, ví dụ như: thiết bị bếp Á, thiết bị bếp âu, bếp chiên, bếp nướng, bếp hấp, lò nướng, thiết bị nấu nướng đa năng, lò vi sóng công nghiệp, máy nấu chậm…
- Bếp công nghiệp cần phải được tư vấn thiết kế theo các tiêu chuẩn riêng như: Tuân thủ quy trình bếp một chiều, các nguyên tắc về đảm bảo vệ sinh an toàn thực phẩm và phòng cháy chữa cháy. Vì vậy cần tìm các đơn vị chuyên nghiệp, và có nhiều kinh nghiệm trong lĩnh vực tư vấn thiết kế, thi công bếp công nghiệp để thi công hệ thống bếp công nghiệp.
- Bếp công nghiệp thường được chia thành các khu vực như: Khu kho, khu nhập hàng, khu sơ chế, khu nấu, khu soạn chia, khu rửa, một cách hợp lý và khoa học, tuỳ theo diện tích, hình dạng của bếp. Sự bố trí này sẽ phụ thuộc vào các yếu tố như: Cửa nhập hàng, Khu vực ra hàng, Sự thuận tiện trong giao thông, sự thuận tiện trong kết nối điện nước, sự thuận tiện trong lắp đặt những hệ thống như hút khói, và thoát sàn.
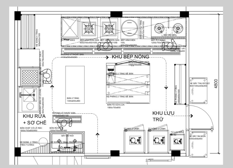
Bản vẽ thiết kế bếp công nghiệp do Thành Vinh thực hiện.
- Bếp công nghiệp là một giải pháp tổng thể từ chọn lựa danh sách thiết bị cần thiết, bố trí thiết bị vào các khu vực hợp lý để thuận tiện thao tác, thi công các giải pháp như hệ thống M&E, hệ thống gas, hệ thống hút khói, hệ thống bẫy mỡ, và thoát sàn, hệ thống phòng cháy chữa cháy và vệ sinh.
- Bếp công nghiệp nên được tính toán kỹ lưỡng về điện nước và không gian diện tích để đảm bảo hệ thống vận hành ổn định, tối ưu diện tích, nhưng vẫn đảm bảo lưu thông thuận tiện cho nhân sự và những thực phẩm lưu chuyển trong nhà bếp
- Bếp công nghiệp là một giải pháp đầu tư cho nhà hàng, khách sạn, bếp ăn công nghiệp, tham gia vào quy trình vận hành và ảnh hưởng đến doanh thu – chi phí của hàng khách sạn, bếp ăn công nghiệp. Vì vậy, nên tính toán kỹ để đầu tư một căn bếp hiệu quả, tối ưu chi phí và có khả năng sinh lợi, không nên quá chú ý đến so sánh giá cả chi tiết các mặt hàng bên trong, mà quên đi các giải pháp tổng thể dẫn tới kém hiệu quả và tốn kém chi phí trong tương lai.
- Bếp công nghiệp cũng cần được mở rộng trong tương lai, vì vậy các đơn vị thiết kế chuyên nghiệp sẽ tư vấn cho bạn cả các giải pháp mở rộng khi cần thiết và dự phòng diện tích, điện nước để bạn có thể mở rộng dễ dàng bất cứ lúc nào.
Ý nghĩa của việc đầu tư hệ thống bếp công nghiệp cho nhà hàng, khách sạn, trường học, bệnh viện.
Đầu tư một hệ thống bếp chuyên nghiệp rất quan trọng trong việc kinh doanh của nhà hàng, các cơ sở F&B, trường học và bệnh viện. Bếp công nghiệp không chỉ ảnh hưởng đến chất lượng món ăn, hiệu quả ra món nhanh và đều đặn, mà còn ảnh hưởng đến sức khoẻ nhân viên, những trải nghiệm của khách hàng.
Đặc biệt chi phí vận hành của bếp công nghiệp hàng tháng không hề nhỏ, việc đầu tư vào hệ thống bếp công nghiệp được tư vấn tốt bởi nhà cung cấp uy tín và có nhiều kinh nghiệm sẽ giúp bạn tối ưu chi phí vận hành lên tới 20-30% nhờ việc tối ưu quy trình, giao thông, diện tích, điện nước, gas, cũng như đảm bảo các thực phẩm được bảo quản thực phẩm hiệu quả, các giải pháp như hệ thống hút khói, hệ thống thoát sàn, xử lý dầu mỡ và hệ thống điện nước đều ảnh hưởng trực tiếp đến chi phí vận hành. Vì vậy hãy cân nhắc và lựa chọn kỹ càng trước khi quyết định.
QUY TRÌNH BẾP MỘT CHIỀU:
Quy trình bếp một chiều có thể hiểu là quy trình lưu thông của thực phẩm trong nhà bếp phải đảm bảo theo quy trình một chiều để đảm bảo các thực phẩm lưu thông tiện lợi, hợp lý và không bị chồng chéo giữa các loại thực phẩm khác nhau, thực phẩm sống – chín, sạch – dơ đảm bảo vệ sinh an toàn thực phẩm. Để đảm bảo quy trình này được thực hiện nghiêm ngặt, bếp công nghiệp thường phân chia ra thành các phân khu phù hợp theo quy trình một chiều như sau:
KHU SƠ CHẾ
Khu sơ chế sẽ có cửa nhập hàng để nhập các thực phẩm vào, sau đó phân loại, cân, sơ chế và bảo quản. Các thiết bị bếp công nghiệp thường được bố trí ở khu sơ chế là bàn chậu rửa, thớt chặt, cân, xe đẩy hàng, máy chế biến thực phẩm, máy hút chân không, giá kệ, tủ lạnh bảo quản.
Thực phẩm sau khi sơ chế sẽ đi vào khu nấu hoặc đi vào tủ lạnh, khu dự trữ nếu chưa dùng tới. Tại khu sơ chế thì các bàn và chậu cũng sẽ được chia ra để sơ chế rau củ và thịt cá riêng, đảm bảo vệ sinh.
KHU NẤU – KHU BẾP NÓNG:
Đây là khu vực chính và quan trọng nhất của bếp công nghiệp – nhà hàng. Tại đây Thành Vinh sẽ tính toán và tư vấn cho khách hàng các thiết bị bếp phù hợp với nhu cầu, số lượng bếp cần thiết, cũng như tính toán bố trí các thiết bị phù hợp để đem lại sự thuận tiện cho nhà bếp, tối ưu không gian, tiết kiệm năng lượng và đảm bảo công năng sử dụng cho đầu bếp.
KHU BẾP LẠNH – SALAD:
Bếp lạnh, salad thường dùng để thực hiện các món rau, salad, vì vậy khu bếp lạnh thường được trang bị bàn mát salad, bàn inox và kệ inox để thuận tiện thao tác.
bàn lạnh okinaga
KHU BẾP BÁNH:
Các nhà hàng có món bánh sẽ có thêm khu bếp bánh. Bếp bánh phải được quây kín tách riêng với các khu bếp khác để đảm bảo vệ sinh. Các thiết bị được trang bị trong khu bếp bánh gồm có lò nướng bánh, tủ ủ bột, máy trộn bột, máy cán bột.
KHU BẾP TIỆC:
Trong các nhà hàng hội nghị tiệc cưới hoặc khách sạn sẽ có thêm khu bếp tiệc dùng riêng để đánh tiệc, các thiết bị bếp được bố trí để phù hợp với các loại tiệc và quy mô tiệc nhà bếp phục phụ.
KHU SOẠN CHIA:
Thức ăn sau khi nấu chín và chế biến phù hợp sẽ được đưa vào các bàn có kệ để đĩa ở bên dưới để soạn chia, decor và giữ nóng trước khi đem ra phục vụ thực khách. Khu soạn chia thường được trang bị bàn có kệ dưới, đèn giữ nóng thức ăn, quầy tủ xe giữ nóng.
Khu soạn chia bếp công nghiệp
KHU RỬA CHÉN:
Khu rừa thường là một khu riêng được tách biệt hoàn toàn với các phân khu khác trong nhà bếp công nghiệp để đảm bảo đồ sạch với đồ dơ sẽ không tiếp xúc với nhau. Khu rửa thường được trang bị máy rửa chén, chậu rửa, kệ inox, tủ sấy chén, tủ úp chén và các xe đẩy để di chuyển các vật cần rửa.
Bếp công nghiệp là nơi nấu nướng liên tục với tần suất cao, nhiệt độ lớn và rất nhiều dầu mỡ, khói bụi. Vì vậy chủ nhà hàng cần quan tâm đến thi công hệ thống hút khói, hệ thống Gas LPG an toàn. Hệ thống hút khói cần đảm bảo đúng đủ công suất, hút tốt, độ bền cao, độ ồn thấp, và được tư vấn thi công bởi đội ngũ kỹ thuật viên giàu kinh nghiệm, đem đến hiệu quả hút khói tốt nhất. Hệ thống gas LPG cần đảm bảo an toàn chất lượng, đem đến sự yên tâm và an toàn cho nhà bếp công nghiệp.
Tạo sao chọn Thành Vinh để tư vấn thi công hệ thống bếp công nghiệp?

Thành Vinh, với uy tín và kinh nghiệm 15 năm trong lĩnh vực bếp công nghiệp, bếp nhà hàng, bếp trường học, bệnh viện… sẽ tư vấn cho các bạn chuẩn xác nhất về giải pháp đầu tư hiệu quả, cũng như thời gian hợp lý nhất, và cách thức để có được một hệ thống hiệu quả, lâu dài và tối ưu chi phí vận hành.
Đặc biệt, Thành Vinh không ngừng đổi mới tư duy sáng tạo và cập nhật các xu hướng mới nhất về thiết kế, các giải pháp và sản phẩm mới nhất, để tư vấn cho các bạn một hệ thống bếp cập nhật, và hiện đại, thẩm mỹ.
Thành Vinh luôn tối ưu quy trình, đào tạo nhân sự để đem đến các trải nghiệm tư vấn bán hàng nhiệt tình chu đáo, chuyên nghiệp, đem đến sự hài lòng cho khách hàng.
Thành Vinh luôn đầu tư cơ sở vật chất hiện đại như xưởng sản xuất thiết bị inox để có thể sản xuất theo yêu cầu mẫu mã kích thước phù hợp cho từng khu bếp, kiểm soát chất lượng đầu vào, nguyên vật liệu một cách chặt chẽ. Kho hàng nhập khẩu để không phải qua nhiều khâu trung gian, tối ưu giá cả cho khách hàng, showroom trưng bày đầy đủ các trang thiết bị với nhiều chương trình ưu đãi hấp dẫn để gia tăng trải nghiệm mua hàng thú vị và hài lòng cho khách hàng.
ƯU ĐIỂM CỦA THIẾT BỊ BẾP CÔNG NGHIỆP – NHÀ HÀNG THÀNH VINH
1/ ĐỘI NGŨ CHUYÊN MÔN KỸ THUẬT CÓ KINH NGHIỆM & ĐƯỢC ĐÀO TẠO BÀI BẢN.
Luôn chú trọng đến chất lượng dịch vụ sau bán hàng và bảo hành bảo trì sản phẩm cho khách hàng, Thành Vinh luôn chú tâm xây dựng đội ngũ kỹ thuật tâm huyết, sáng tạo, có tinh thần trách nhiệm cao, được đào tạo bài bản có tác phong chuyên nghiệp.
2/ SẢN PHẨM CHẤT LƯỢNG – PHÙ HỢP VỚI KHÁCH HÀNG.
Việc tư vấn đúng đủ sản phẩm & cung cấp các sản phẩm chất lượng tốt cho khách hàng luôn là sự quan tâm hàng đầu của Thành Vinh. Đội ngũ tư vấn của Thành Vinh sẽ tư vấn các loại sản phẩm, công suất, công năng, kích thước, nguồn năng lượng phù hợp với nhu cầu, ngân sách và các yêu cầu kỹ thuật của khách hàng.
Các sản phẩm của Thành Vinh được nhập khẩu chính hãng từ các thương hiệu uy tín, lâu năm, được thị trường tin tưởng và sử dụng của Malaysia, Thái Lan, Italy, Hàn Quốc…
Hệ thống kho bãi dự trữ đạt chuẩn, giúp sản phẩm đảm bảo chất lượng tới tay khách hàng.
Showroom trưng bày giúp khách hàng dễ dàng xem và lựa chọn sản phẩm hợp lý, khu bếp Demo giúp khách hàng tham khảo các giải pháp và sản phẩm thực tế của Thành Vinh trước khi tiến hành hợp tác
3/ THIẾT KẾ TƯ VẤN HỆ THỐNG BẾP CÔNG NGHIỆP – NHÀ HÀNG ĐẠT CHUẨN – TỐI ƯU – HIỆU QUẢ
Các thiết kế hệ thống bếp công nghiệp của Thành Vinh hướng tới việc đáp ứng nhu cầu về công suất, diện tích, món ăn, giao thông thuận tiện, và giải pháp xử lý các vấn đề phát sinh hoặc chưa hoàn thiện của mặt bằng.
Thiết kế bếp công nghiệp – nhà hàng của Thành Vinh luôn đảm bảo nguyên tắc bếp một chiều, đáp ứng các yêu cầu về vệ sinh an toàn thực phẩm phòng cháy chữa cháy giúp khách hàng yên tâm về các hồ sơ thủ tục cấp phép vận hành.
Thiết kế từ Thành Vinh ưu tiên tính sáng tạo, tối ưu diện tích, công suất, bố trí đúng đủ các thiết bị giúp chủ đầu tư tiết kiệm thời gian, công sức & vận hành nhà bếp hiệu quả.
4/ GIẢI PHÁP TỔNG THỂ – TIẾT KIỆM THỜI GIAN – CHI PHÍ:
Thành Vinh với các giải pháp tổng thể từ tư vấn – thiết kế – thi công – bảo hành, bảo trì các hệ thống bếp công nghiệp – nhà hàng, hệ thống hút khói, hệ thống gas công nghiệp, hệ thống xử lý dầu mỡ, thoát nước sàn giúp chủ nhà hàng tiết kiệm tối đa thời gian, chi phí, đảm bảo tính đồng bộ, hiệu quả cho nhà bếp.
Để được tư vấn tận tình & miễn phí, hãy liên hệ:
CÔNG TY TNHH SẢN XUẤT TM DV THÀNH VINH
Văn phòng: B168e đường Nguyễn Chí Thanh, KP. Bình Phước, P. Bình Nhâm, TP. Thuận An, Bình Dương
Xưởng: B168e đường Nguyễn Chí Thanh, KP. Bình Phước, P. Bình Nhâm, TP. Thuận An, Bình Dương
Thành Vinh – Uy tín – Chất lượng trong từng sản phẩm!
• Hotline: 0947 838 939 (Dự án) – 0936 37 77 27 (Kĩ thuật)
• Email: thanhvinh.thien@gmail.com – congtythanhvinh.tv@gmail.com
• Website: www.bepinoxcongnghiepthanhvinh.com